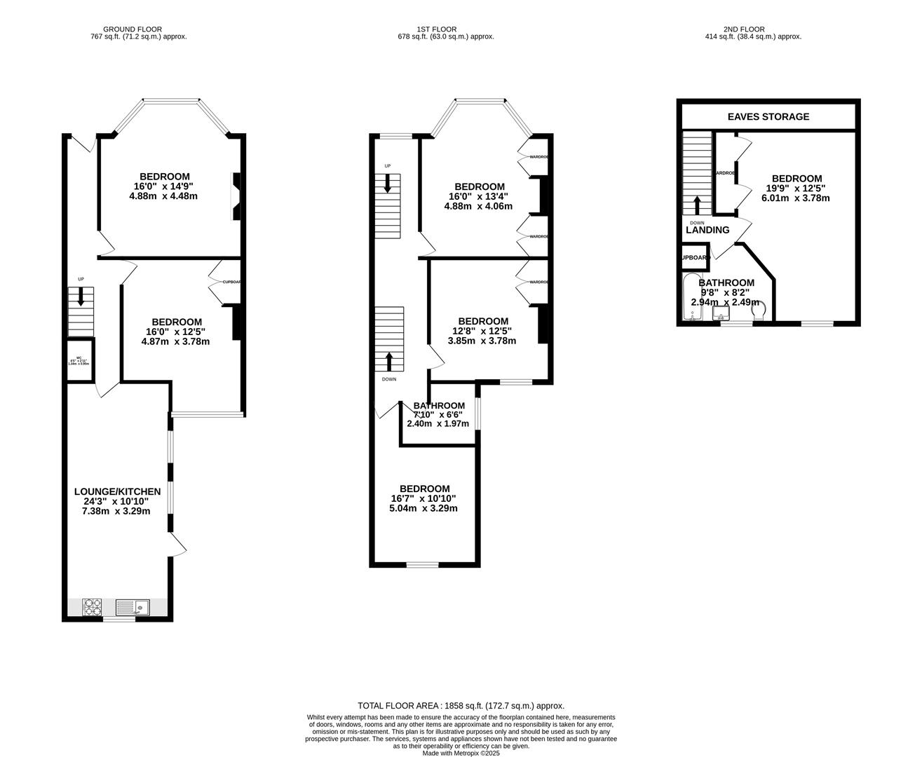
Nestled on Nevil Road in the vibrant city of Bristol, this substantial mid-terrace house presents an exceptional opportunity for students seeking comfortable and convenient accommodation. Spanning an impressive 1,442 square feet, this property boasts six generously sized double bedrooms, making it ideal for a group of friends or fellow students. Upon entering, you are greeted by a wide entrance hall that leads to a well-appointed WC conveniently located under the stairs. The ground floor features two spacious double bedrooms, alongside an open plan lounge, kitchen, and dining area, perfect for socialising and unwinding after a long day of studies. The layout encourages a communal atmosphere, making it easy to entertain guests or enjoy quiet evenings in. Ascending to the first floor, you will find three additional spacious double bedrooms, complemented by a modern shower room. The top floor has been thoughtfully converted, which houses a further bathroom and the sixth double bedroom, providing ample privacy and comfort for all residents. The property is offered furnished, ensuring that students can move in with ease and settle quickly into their new home. Its prime location places it within easy reach of both Bristol University and the University of the West of England (UWE), as well as the bustling amenities found on Gloucester Road, which is known for its eclectic mix of shops, cafes, and restaurants. This property is available for the 2026/2027 academic year, making it a perfect choice for students looking to secure their accommodation in advance. With its spacious layout, excellent location, and student-friendly features, this house is not to be missed.

Interested in this property?
Get in touch and we'll arrange to show you around.
0117 909 4400
Book a viewingBy submitting this form, you agree that we may contact you about your enquiry using the details you have provided.
By submitting this form, you agree that we may contact you about your enquiry using the details you have provided.